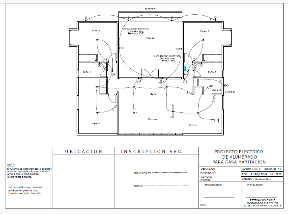
El proyecto eléctrico domiciliario, se requieren en reformas o construcciones de ambientes domésticos, ya que muestran la ubicación de puntos de iluminación, tomacorrientes y tablero de distribución de alumbrado.
Se solicitará el T1, el cual es un certificado de la SEC que indica que una instalación eléctrica interior residencial, comercial o industrial es segura y cumple con las normativas vigentes.
Se presentará una memoria explicativa si el proyecto supera los 20 KW, esta consiste en un documento con la información detallada sobre cómo se ha llevado a cabo la instalación eléctrica.


Posuere nulla diam tristique euismod. Eu gravida pellentesque erat ornare gravida pellentesque amet egestas. Montes at.
Posuere nulla diam tristique euismod. Eu gravida pellentesque erat ornare gravida pellentesque amet egestas. Montes at.
Posuere nulla diam tristique euismod. Eu gravida pellentesque erat ornare gravida pellentesque amet egestas. Montes at.